Genil House

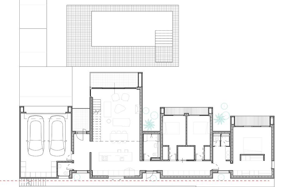
On the upper part of a plot with excellent distant views of Madrid, several volumes of concrete overlook the views, each with a specific function and vertebrated through a corridor of circulation and storage.

A house that is organized as a logical sequence of volumes each one with a specific use and a position according to the movements of access and operation in the house: garage, living room and bedrooms, to maximize the windows towards orientation and views.

The back part works as a corridor and storage area and looks towards the views as well.

The largest volume groups the public areas of the house, forming a single space in double height and a curtain wall to dominate the garden and the views.

  • Year

    2019

  • Use

    Housing

  • Location

    Torrelodones, Madrid

  • Area

    255 m2

  • Team

    Jaime Cantero, Gerardo Marcos , Carlos Lara, Humberto Ravazzi, Patricia Gil, Marta Yubero

  • Video