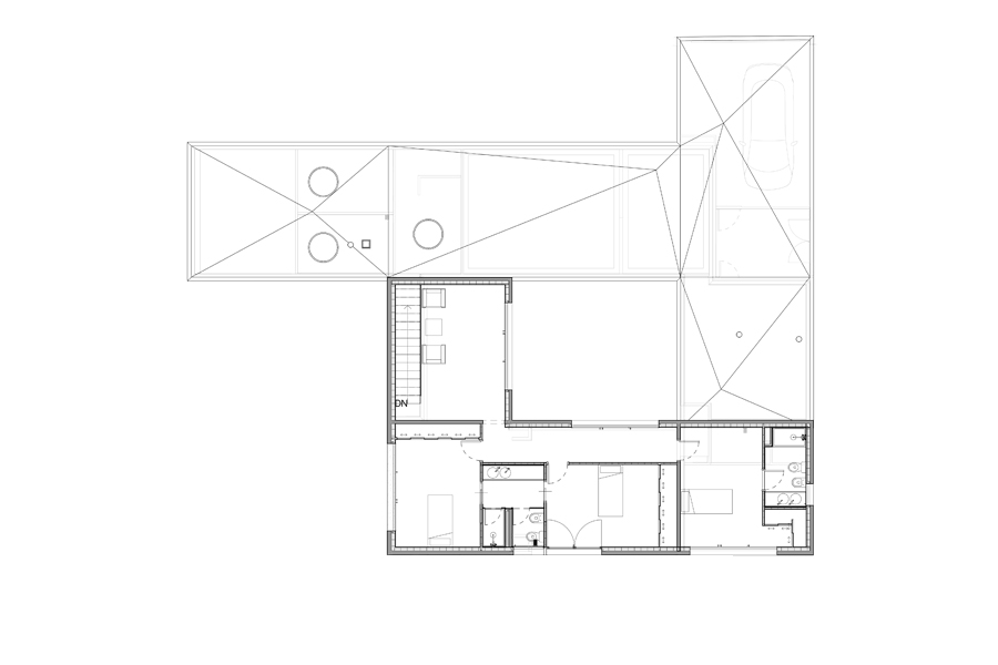
Banastás House

Two pieces in L at different heights define a central and open patio, and around it, the rooms of the house are located. The constructive system of structural walls of industrialized concrete allows large lights and flights and a fast execution period.

From the starting idea of ??a patio house, raising two of its sides establishing a sequence of open spaces, patio and covered porch, with different gradations of exterior protection, for maximum use and enjoyment of the pool and garden.

The most public spaces are located on the ground floor; living room-kitchen, and master bedroom and more independent guests at the ends of the volume to allow more privacy.

The upper floor houses the bedrooms and living room for children, with great privacy over the rest of the house.

  • Year

    2019

  • Use

    Housing

  • Location

    Banastás, Huesca

  • Area

    250 m²

  • Team

    Jaime Cantero, Gerardo Marcos, Carlos Lara, Humberto Ravazzi, Patricia Gil, Marta Yubero