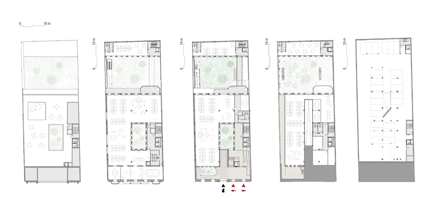
Castellana 19

  • Year

    2020

  • Use

    Offices

  • Location

    Madrid

  • Area

    4.200 m2

  • Team

    Jaime Cantero y Carlos Lara.

  • Colaborations