Agua Lab

This laboratory is located on ground and first floor plan and it is conceived as a modular element, supported by a structure system of “ribs” and pillars on the outside of the building, which allows a free interior space to be set up on each plan following its specific requirements.

The Project is located in a Technological Park in the surroundings of Madrid, a growing area with aspirations
to become a vanguard company’s center.

This laboratory remarks the idea of a technological building by means of its formal appearance, which is consequence of its functional organization, structure, finished materials.

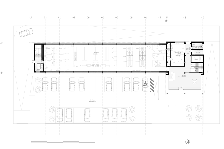
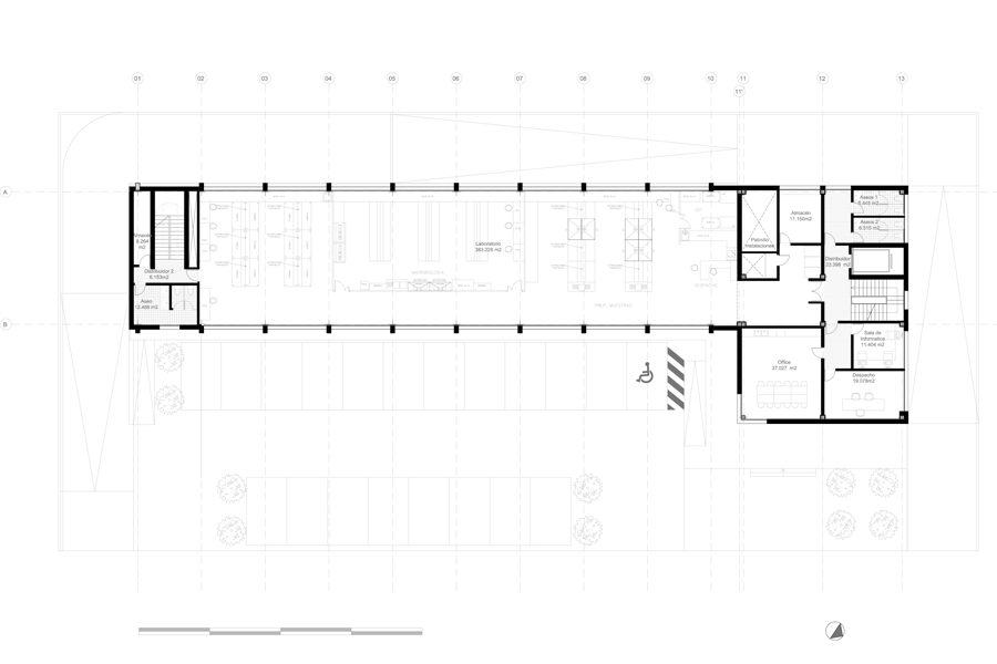
Building consist of an elongated volume (laboratory) parallel to the street and connected to a smaller one (administrative area) in perpendicular.

The laboratory is located on ground and first floor plan and it is conceived as a modular element, supported
by a structure system of “ribs” and pillars on the outside of the building, which allows a free interior space to be set up on each plan following its specific requirements. Both structure and cladding are metallic due to its modular character and the fast assembling requirements. These characters highlight the accuracy of an industrial building.

The smaller volume corresponds to the administrative area that in contrast to the laboratory uses precast concrete panels as cladding material, owed to different functional requirements and also in order to remark by means of different materials the functional organization of the overall building.

  • Year

    2012

  • Use

    Offices

  • Location

    Madrid

  • Area

    1.800 m²

  • Team

    Colaboration with PROINTEC

  • Colaborations